Навес для автомобиля 6х6 — это универсальное и востребованное решение для частного дома, дачи или коттеджа. Такой размер оптимален: он позволяет разместить один или два автомобиля, создать дополнительное пространство для хранения или даже организовать зону отдыха. В этой статье подробно разберём проект навеса 6х6, его конструктивные особенности, а также уделим особое внимание тому, как современные проектировщики создают такие решения с помощью BIM-инструментов и почему курсы Revit становятся ключевым навыком.
Почему именно навес 6×6?
Формат 6×6 метров считается одним из самых удобных:
- достаточно площади для 2 автомобилей;
- компактность — не занимает лишнее место на участке;
- простая геометрия, удобная для проектирования и строительства;
- универсальность — подходит под разные архитектурные стили.
Запросы вроде «навес для автомобиля 6х6», «навес для машины 6х6» или «проект навеса 6х6» стабильно популярны именно потому, что этот формат — золотая середина между функциональностью и экономичностью.



Конструкция: навес 6х6 из бруса
Один из самых популярных вариантов — навес 6х6 из бруса. Он сочетает эстетику натурального дерева и высокую прочность.
Основные элементы конструкции:
- Опоры — чаще всего брус 150×150 мм;
- Прогоны и балки — распределяют нагрузку от крыши;
- Стропильная система — формирует кровлю;
- Обрешётка — основание под кровельный материал;
- Фундамент — винтовые сваи или бетонные столбы.
Такой навес хорошо вписывается в загородную архитектуру, особенно рядом с деревянным домом.
Двускатная крыша: практичность и внешний вид
Запрос «навес 6х6 двускатный» встречается чаще всего — и это не случайно.
Преимущества двускатной конструкции:
- эффективный отвод воды и снега;
- высокая устойчивость к нагрузкам;
- классический внешний вид;
- возможность использовать чердачное пространство.
Двускатная крыша особенно актуальна для регионов с большим количеством осадков, таких как Московская область.





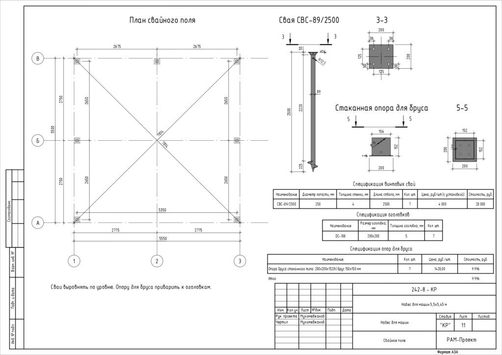
Чертёж навеса 6х6: что должно быть в проекте
Правильный чертеж навеса 6х6 — это не просто схема, а полноценный инженерный документ.
Он включает:
- план расположения опор;
- разрезы конструкции;
- узлы соединений;
- спецификацию материалов;
- расчёт нагрузок;
- ведомость крепежа и элементов.
Без грамотного проекта даже простая конструкция может привести к перерасходу материалов или проблемам в эксплуатации.

Материалы для навеса 6×6
Для стандартного проекта используются:
Дерево:
- брус (150×150, 100×100);
- доска (50×150, 40×100);
- рейка для обрешётки.
Кровля:
- металлочерепица;
- профлист;
- мягкая кровля.
Основание:
- винтовые сваи;
- бетонные опоры.
Важно учитывать запас материалов — обычно 10–20% сверх расчётного объёма.
Как проектируют навесы сегодня: роль Revit
Современный проект навеса 6х6 всё чаще создаётся не в AutoCAD, а в BIM-среде, такой как Revit. Это принципиально меняет подход к проектированию.
Почему Revit лучше классических методов:
- 3D-модель вместо плоских чертежей;
- автоматическое формирование спецификаций;
- точные расчёты объёмов материалов;
- минимизация ошибок;
- удобная работа с изменениями.
Проектировщик может сразу увидеть, как будет выглядеть навес для автомобиля 6х6, проверить узлы и даже рассчитать стоимость.
Курсы Revit для проектировщиков: инвестиция в профессию
Если вы хотите профессионально создавать проекты, включая навесы 6х6 из бруса, без Revit сегодня сложно обойтись.


Что дают курсы Revit:
- Понимание BIM-подхода
Вы учитесь работать не с линиями, а с информационной моделью здания. - Создание конструкций с нуля
От фундамента до кровли — всё моделируется в одной системе. - Автоматизация документации
Чертеж навеса 6х6 формируется автоматически из модели. - Работа с семействами
Можно создавать собственные элементы: балки, узлы, крепления. - Экономия времени
Проекты делаются быстрее, а правки занимают минуты, а не часы.
Пример: как создаётся проект навеса 6х6 в Revit
Процесс выглядит так:
- Создание сетки осей (6×6 м);
- Размещение опор (брус или металл);
- Добавление балок и прогонов;
- Формирование стропильной системы;
- Создание кровли;
- Генерация спецификаций;
- Выпуск чертежей.
В результате вы получаете не просто картинку, а полноценный проект навеса 6х6, готовый к реализации.
Ошибки при проектировании навеса
Даже простая конструкция может быть спроектирована неправильно.
Частые ошибки:
- неверный шаг опор;
- слабая стропильная система;
- отсутствие расчёта снеговой нагрузки;
- неправильный выбор сечения бруса;
- отсутствие узлов в чертежах.
Revit помогает избежать этих проблем за счёт точности и наглядности.
Стоимость навеса 6×6
Цена зависит от:
- материалов;
- типа кровли;
- сложности конструкции;
- региона;
- наличия проекта.
Но грамотный проект позволяет:
- снизить перерасход;
- оптимизировать конструкцию;
- точно рассчитать бюджет.
Итог
Навес 6х6 для автомобиля — это практичное, эстетичное и экономически оправданное решение. Он подходит для большинства участков, легко адаптируется под разные задачи и может быть реализован из доступных материалов.
Однако ключ к качественному результату — это грамотный чертеж навеса 6х6 и современный подход к проектированию. Именно поэтому всё больше специалистов переходят на BIM-технологии.
Если вы хотите создавать такие проекты быстро, точно и профессионально — обучение Revit становится не просто полезным, а необходимым шагом.

Добавить комментарий