Курс предназначен для начинающих пользователей и поможет быстро освоить основы работы в Revit. Курс будет полезен проектировщикам, желающим ускорить процесс проектирования; студентам и специалистам строительной сферы; прорабам, менеджерам строительных компаний и частным застройщикам. Вы научитесь пошагово моделировать каркасный дом — от создания плана до формирования спецификаций основных материалов для строительства.

Курс Revit по проектированию каркасного дома (АР + КР). Полное обучение архитектуре и конструкциям
Современное строительство невозможно представить без BIM-технологий. Всё больше специалистов переходят от традиционных CAD-инструментов к параметрическому моделированию, а самым востребованным ПО становится Autodesk Revit. Если вы ищете практическое обучение, где можно шаг за шагом освоить моделирование архитектуры и конструктивных решений, — этот курс Revit по каркасному дому создан специально для вас.
Это не просто набор видеоуроков, а полноценный образовательный продукт, объединяющий архитектурную и конструктивную части проекта. Он подойдёт как новичкам, так и практикующим специалистам, которые хотят систематизировать знания и ускорить рабочие процессы.
Профессиональное обучение архитектуре и конструированию в Revit
Если вы ищете практический курс ревит по каркасному дому, где можно пройти путь от первых шагов до полного проекта дома — этот курс идеально подойдёт. Это не теория, а полноценный ревит обучающий курс, который формирует уверенные навыки проектирования в среде BIM.
Ссылка на курс — https://stepik.org/a/243896
Отзывы учеников — https://ramproject.ru/kurs/
⭐ Почему Revit — лучший выбор для проектирования каркасных домов
Revit — это параметрическая BIM-платформа, позволяющая создавать интеллектуальные 3D-модели, получать чертежи, спецификации, расчёты и визуализации автоматически. Именно поэтому многие ищут ревит программу для проектирования курсы, чтобы перейти к современным стандартам проектирования.
Используя Revit, вы получаете:
- единую среду для архитектуры, конструктивных решений и документации;
- автоматическое обновление чертежей при любых изменениях модели;
- быструю подготовку спецификаций материалов;
- возможность моделировать сложные узлы без ручной корректировки;
- удобный экспорт проекта в PDF и другие форматы.
Именно эти компетенции формируются в ходе обучения.
Автор курса

Инженер-проектировщик с высшим техническим образованием, 14-летним опытом работы в российских и зарубежных компаниях и практическим опытом строительства. Реализовал большое количество технически сложных проектов в энергетике и строительстве. За время работы прошел путь от стажера до руководителя группы технической поддержки в крупной производственной организации. Автор курсов на Stepik.
🎓 Чему вы научитесь — полный список навыков
Этот обучающий курс Revit формирует фундаментальные и практические навыки моделирования каркасных домов. После прохождения вы сможете профессионально использовать Revit как архитектор или конструктор.
Вы освоите:
Навыки архитектурного моделирования
- создание уровней, осей, привязок;
- моделирование фундамента, стен, перекрытий, полов и потолков;
- построение кровли и проёмов;
- работа с окнами, дверями, лестницами, мебелью;
- создание архитектурных видов, фасадов, разрезов.
Навыки конструкторского моделирования
Как полноценные курсы ревит для конструкторов, программа включает:
- построение свайного поля и обвязки;
- моделирование силового каркаса из доски;
- формирование стеновых и кровельных сборок;
- моделирование стропильной системы;
- создание монтажных схем;
- моделирование конструктивных узлов и соединений.
BIM и документация
- понимание логики BIM-параметров;
- создание детальных спецификаций;
- автоматизация расчётов материалов;
- настройка листов и подача документации;
- экспорт в PDF и другие форматы.
Работа с Revit на профессиональном уровне
- работа с семействами, группами и сборками;
- создание пользовательских элементов;
- работа с видами, фильтрами, шаблонами отображения.
Этот курс даёт широкие возможности и подходит всем, кому нужны курсы проектирования ревит с реальной практикой.

Этот курс охватывает и архитектуру, и конструктив — что делает его подходящим для тех, кому нужны курсы ревит для конструкторов и архитекторов одновременно.

👤 Для кого предназначен курс
Программа разработана так, чтобы быть полезной как новичку, так и специалисту. Она подходит:
- начинающим пользователям Revit;
- архитектурным бюро и проектировщикам;
- конструкторам, изучающим BIM;
- студентам профильных специальностей;
- прорабам, инженерам и менеджерам строительных компаний;
- частным застройщикам.
Если вы хотите пройти эффективные курсы ревита онлайн и не тратить месяцы на разрозненную информацию — это оптимальный вариант.
📘 О курсе
Вас ждёт комплексное обучение Autodesk Revit, где каждая тема объясняется простым языком. Программа создана так, чтобы вы могли осваивать Revit постепенно, переходя от архитектурной модели к конструктивной.
Курс также отлично подойдёт тем, кто ищет «ревит программа для проектирования курсы» или хочет пройти качественные курсы ревита онлайн с практикой.



🧩 Программа курса
1. Архитектурная модель (АР)
Блок построен для тех, кому нужен структурированный курс ревит архитектура:
- создание планов и уровней;
- моделирование фундамента, стен, перекрытий;
- кровля, окна, двери, потолки;
- мебель и элементы оформления;
- настройка видов и листов.
2. Оформление раздела АР
- создание фасадов, разрезов, планов;
- настройка графики и стилей;
- подготовка ведомостей.
3. Конструктивная модель (КР)
Этот блок ориентирован и на тех, кому нужны курсы ревит для конструкторов:
- моделирование силового каркаса из доски;
- создание узлов соединений;
- построение свайного поля;
- моделирование пола, кровли и стропильной системы.
4. Оформление раздела КР
- монтажные схемы;
- развертки стен;
- спецификация материалов и смета;
- оформление листов.
Каждый урок сопровождается видеоматериалами и готовыми файлами — формат идеально подходит для курсы ревита онлайн.
🎯 Результат обучения
После курса вы сможете:
- уверенно работать в Revit и применять BIM в практике;
- создавать архитектурные и конструктивные модели каркасных домов;
- моделировать стены, полы, перекрытия, кровлю, каркас и перегородки;
- оформлять полный комплект АР и КР;
- получать точные спецификации материалов;
- подготавливать проекты к публикации и экспорту в PDF.
Это полноценный курс ревит по каркасному дому, который даёт результат с первого же модуля.
Гостевой дом, построенный по примеру проекта из курса


🏡 Практика с реальным результатом
Вы создадите учебный проект полностью с нуля:
- оформите все листы АР и КР,
- получите рабочий комплект чертежей,
- экспортируете проект в PDF.
Такая методика идеально подходит для всех, кто выбирает курсы проектирования ревит и хочет получить практический опыт.
📦 Что вы получите после оплаты
- готовый шаблон Revit для проектирования домов ИЖС;
- пошаговые уроки и практические файлы;
- поддержку автора и ответы на вопросы;
- чёткий алгоритм проектирования каркасного дома.
📄 Состав учебного проекта (АР)
В комплект входят:
- титульный лист;
- список листов;
- общие данные;
- фасады (юг, север, восток, запад);
- план на отм. 0.000;
- разрез с описанием пирогов конструкций;
- спецификация материалов;
- виды 3D;
- план кровли;
- интерьерные виды.
📄 Состав учебного проекта (КР)
Вы оформите:
- титульный лист и список листов;
- все фасады;
- план свайного поля;
- план обвязки;
- план чернового пола;
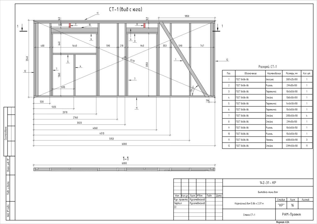
- монтаж внешних стен (СТ-1—СТ-5);
- план стропильной системы;
- план контробрешётки и обрешётки;
- план пола;
- план раскладки OSB;
- спецификация материалов и стоимости.
⚙ Требования
ПО:
- Revit 2024 и выше
Навыки:
- уверенная работа на ПК
Системные требования:
- Windows 10/11 64-bit
- процессор 2.5 ГГц и выше
- 8–16 ГБ RAM
- видеокарта с DirectX 11 (4 ГБ VRAM)
- экран от 1280×1024
- 30 ГБ свободного места
🎥 Как проходит обучение
Курс полностью практический:
вы смотрите урок → повторяете → закрепляете → получаете результат.
Формат идеален для тех, кто выбирает курсы ревита онлайн и хочет учиться в удобном темпе.

Добавить комментарий